CHRISTOPHER.M.SIMMONS

[Sketchup]

[AutoCAD]

[AutoCAD]

[Sketchup]
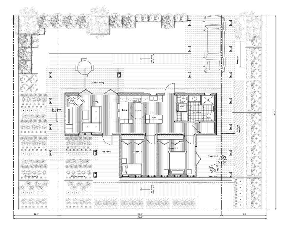
This design was chosen to represent Team Kentuckiana (University of Louisville, Ball State University, and University of Kentucky) during the 2013 Solar Decathlon in Irvine, California. I continued with the design for another semester in order to ensure that the concepts and design decisions followed our original design intent. During this time, I helped with the construction documents, specifications, prototyping, and material choices on the interior of the house.
Solar Decathlon: Home
Team Kentuckiana Design Entry for the 2013 Solar Decathlon Competition
Summer/Fall 2012 Graduate Studios
Partners: Ryan Anderson, Jordan Doyle,
Yuanfan Gu
Selected for the University of Louisville/Ball State University 2013 Solar Decathlon Design: Phoenix House [link]